SQ48X-1三通切换阀(下切换)
- 销售:
- 销售:
- 传真:
详情介绍
- 产品介绍
- 服务承诺
- 订货流程
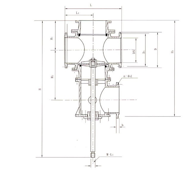
SQ48X-1三通切换阀(又称下切换),由四通体、阀座、阀塞、阀杆、密封圈等零件组成。阀杆连带阀塞上下运动,实现阀门的启闭。上下阀座上装有硅橡胶密封圈,分别封闭上下两通。
SQ48X-1三通切换阀的驱动可采用气缸、油缸、电动推杆等不同的操作方式,阀杆只做直线运动,其行程和推力见注,驱动装置用户自备,也可提出要求特殊订货处理。
主要性能参数
采用气动驱动装置:气源压力0.35-0.6Mpa
采用油缸驱动装置:液压0.8Mpa
公称压力:0.25Mpa
介质压力:0.05Mpa
适用温度:≤180℃
密封材料:硅橡胶
启闭时间:2-6S

主要外形连接尺寸
DN | D | D1 | N-φd | b1 | L | L1 | H1 | H2 | H3 | H | M-L1 | 推力(N) |
350 | 490 | 445 | 12-φ22 | 20 | 800 | 400 | 410 | 600 | 350 | 1910 | M36×2-40 | 350 |
400 | 540 | 495 | 16-φ22 | 20 | 860 | 430 | 450 | 650 | 380 | 2060 | M36×2-40 | 380 |
500 | 645 | 600 | 20-φ22 | 20 | 920 | 460 | 550 | 875 | 430 | 2475 | M40×2-50 | 430 |
600 | 755 | 705 | 20-φ26 | 22 | 1000 | 500 | 600 | 975 | 500 | 2700 | M44×2-60 | 500 |
700 | 860 | 810 | 24-φ26 | 22 | 1200 | 600 | 650 | 1075 | 550 | 3075 | M48×2-80 | 550 |
800 | 975 | 920 | 24-φ30 | 22 | 1400 | 700 | 700 | 1175 | 600 | 3375 | M56×2-80 | 600 |
900 | 1075 | 1020 | 24-φ30 | 22 | 1400 | 700 | 750 | 1280 | 650 | 3580 | M60×2-100 | 650 |
1000 | 1175 | 1120 | 28-φ30 | 24 | 1500 | 750 | 800 | 1400 | 700 | 3850 | M60×2-100 | 700 |
良好的品质、优良的服务 开云官方网站·开云登陆入口-开云(中国)为你创造更多价值!
“开云官方网站·开云登陆入口-开云(中国)”的期望,不断提升服务质量,精益求精,“真诚的服务”是“开云官方网站·开云登陆入口-开云(中国)”永恒的主题。“开云官方网站·开云登陆入口-开云(中国)”严格按照IS09001-2000 质量体系认证要求,质量严格把关, 责任到人,确保生产、销售、服务的健康运行。加强与用户沟通,竭诚为广大客户提供优良产品,至善至美服务。特此我厂做出以下承诺:
产品标准:
产品严格按照中国GB、HG 标准和美国API等标准设计、制造、验收。密封面硬度达到国家规定要求,宽度超过国家标准。
售前服务:
产品介绍,技术交流,非标产品设计,疑难解答。
售中服务:
守信合同,保证及时供货,随时保持与客户联系。 对特殊或复制的产品,我厂安排技术人员对用户进行产品使用、故障排除
售后服务:
1、“开云官方网站·开云登陆入口-开云(中国)”牌产品品质期为自出厂起12个月,实行“三包”服务(包退、包换、保修)。
2、产品在使用中我厂定期组织技术、质检人员进行访问,征询用户对产品质量、 使用状况、改进意见等方面的反馈, 以便进一步提高产品质量。
3、对用户投诉质量问题,快速作出反应,售后服务人员在24-36小时(省外48小时)赶赴现场。
4、对售后服务,要求用户填写服务后的质量反馈信息表,并作出鉴定意见,以便提高开云官方网站·开云登陆入口-开云(中国)的服务质量。
1、客户如对产品有特殊要求,须在订货合同中提供以下说明:
a、结构长度;
b、连接形式;
c、公称直径、全通径、缩径、管道尺寸;
d、运行介质及温度、压力范围;
e、试验、检验标准及其他要求
2、本厂可根据客户特定要求配置各类驱动装置。
3、如由客户提供确定的阀门类型和型号时,客户应正确说明其型号的含义和要求,在供需双方理解一致的条件下签订合同。
4、期货、订货的客户请先来电函详细告诉所需的阀门型号、规格、数量以及交货时间、地点,并按总的30%预定金或全额货款及时汇入我厂帐户,其余货款待发货前汇入,以便及时安排发货。
订单流程:
1、客户采购清单传真至,或来电咨询
2、收到客户采购清单,为客户提供阀门型号选型与报价(价格清单)。
3、具体商定:交货期、特殊要求等事宜。
订货须知:
1、客户如对产品有特殊要求,须在订货合同中提供以下说明:
|
|||||
|
|||||
2、本厂可根据客户特定要求配置各类驱动装置。
|
|||||
3、如由客户提供确定的阀门类型和型号时,客户应正确说明其型号的含义和要求,在供需双方理解一致的条件下签订合同。
|
|||||
4、期货、订货的客户请先来电函详细告诉所需的阀门型号、规格、数量以及交货时间、地点,并按总的30%预定金或全额货款及时汇入我厂账户, 其余货款待发货前汇入,以便及时安排发货。
|
售中服务:
守信合同,保证及时供货,随时保持与客户联系。
对特殊或复制的产品,我厂安排技术人员对用户进行产品使用、故障排除
售后服务:
1、“开云官方网站·开云登陆入口-开云(中国)”产品品质期为自出厂起12个月,实行“三包”服务(包退、包换、保修)。
2、产品在使用中我厂定期组织技术、质检人员进行访问,征询用户对产品质量、使用状况、改进意见等方面的反馈,
以便进一步提高产品质量。
3、对用户投诉质量问题,快速作出反应,售后服务人员在24-36小时(省外48小时)赶赴现场。
4、对售后服务,要求用户填写服务后的质量反馈信息表,并作出鉴定意见,以便提高“开云官方网站·开云登陆入口-开云(中国)”的服务质量。
声明 |
|